Download Hoodie Champion Femme Gris

20+ Backwash Shampoo Bowl Installation Pictures

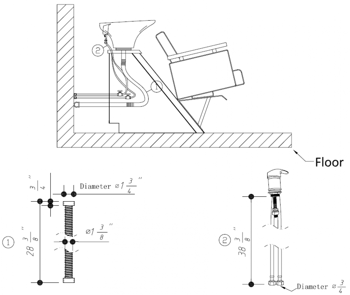
20+ Backwash Shampoo Bowl Installation Pictures. 8400 backwash shampoo bowl plumbing product pdf manual download. 1:43 cooler depot usa 9 587 просмотров.

Shampoo Bowl Round Sink Black Backwash Spa Salon Equipment Tlc B12 Fc Emark Beauty
Shampoo Bowl Round Sink Black Backwash Spa Salon Equipment Tlc B12 Fc Emark Beauty from cdn11.bigcommerce.com
Salon backwash shampoo unit features • colors: Alibaba.com offers 2,014 backwash shampoo bowl products. 8400 backwash shampoo bowl plumbing product pdf manual download.

1:43 cooler depot usa 9 587 просмотров.

Delivered assembled and ready for installation by a skilled professional. About 48% of these are shampoo chairs. Installing jeffco backwash units 25 aero, cambria, cuttery, eclipse, sterling backwash units. 1 installation guide product #:

Komentar